
| 화성비봉 A-3블록은 공공분양(659호)과 행복주택(329호)이 혼합된 단지로, 금회 모집하는 행복주택은 입주자모집공고일(2023.11.10.) 현재 다음 중 하나에 해당하는 사람에게 공급됩니다. |

공급대상 위치
■ 경기도 화성시 비봉면 삼화리,구포리 일원 화성비봉 공공주택지구 A-3블록 내

공급대상 및 임대조건
공급형 기준 59A형, 59A1(주거약자)형, 59B형, 59B1(주거약자)형 총 4개 타입으로 공급되며, 대학생, 청년, 고령자, 주거급여수급자, 신혼부부및 한부모가족계층을 대상으로, 금회 모집 예비자수는 우선공급 162명, 일반공급 163명입니다.

• 본 단지는 공공분양(659호)과 행복주택(329호)이 혼합된 주택이며, 금회 모집하는 행복주택의 동·호수 배정은
우리 공사의 전산 프로그램을 통해 추첨을 실시합니다.
• 본 단지의 지하주차장 기둥 주변 상부 슬래브 부위에 전단보강 철근 누락이 확인됨에 따라 입주 전까지 보강공사를 진행할 예정이며, 이를 이유로 청약취소, 계약해지, 보상요구 등은 불가하오니 신청 시 유의 바랍니다.
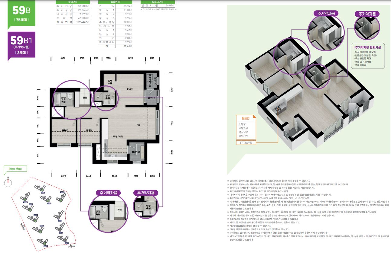
• 화성비봉 A-3블록은 전세대 발코니확장형으로 시공됩니다.
• 행복주택 중 4개호(303동 101호, 306동 101호, 308동 104호, 309동 104호)는 가정어린이집 설치·운영을 위한
공간으로 배정되었으며, 입주개시 전 별도 공고를 통해 어린이집으로 공급될 예정입니다. 공급호수는 향후
유관기관과의 최종 협의 결과에 따라 변동될 수 있습니다.
• 59A,A1형에는 신발장, 현관시스템선반, 주방가구, 냉장고장, 세탁선반, 가스쿡탑(3구)이 설치됩니다.
• 59B,B1형에는 신발장, 주방가구, 냉장고장, 세탁선반, 가스쿡탑(3구)이 설치됩니다.
평면도 내부구조



공급일정
| 청약신청 (인터넷 PC/모바일) |
서류제출대상자 발표 |
서류제출대상자 서류제출 |
| ‘23.11.28(화) 10:00 ~ ‘23.11.30(목) 18:00 ※ 24시간 신청가능 (단, 시작일과 마감일제외) ※ 청약 신청내용 변경은 청약 접수기간 중 가능 (청약 마감이후 변경불가) (현장접수) 11.30(목) 10시~16시 (12시∼13시 제외) ※ LH경기남부지역본부 1층 대강당 |
‘23.12.08(금) 17:00 이후 (확인방법) LH청약플러스 (apply.lh.or.kr) → [청약] → [청약결과 확인] → ‘서류제출대상자 명단’ 조회 |
'23.12.11(월) ~ '23.12.15(금) (서류제출방법) 등기우편 (등기우편 발송주소) 경기도 성남시 분당구 성남대로54번길 3, LH경기남부지역본부 임대공급운영부 화성비봉 A-3블록 행복주택 담당자 앞 ※ 등기우편은 ‘23.12.15(금) 우체국 소인분까지 유효함 ※ 일반우편 접수불가 |
당첨자 발표
| 당첨자 발표 | 계약체결 (전자계약) |
| ‘24.04.10(수) 17:00 이후 (확인방법) LH 청약플러스 (apply.lh.or.kr) → [청약 ] → [청약결과 확인] → ‘당첨/낙찰자 명단‘ 조회 또는 ARS(1661-7700) |
’24.04.22(월) 10:00 ~ ’24.04.24(수) 17:00 (전자계약) 국토교통부 부동산거래 전자계약시스템 (https://irts.molit.go.kr) (현장계약) ‘24.04.23(화) 10시~16시 (12시∼13시 제외) ※ LH경기남부지역본부 1층 대강당 |
신청자격
① 대학생 계층 ② 청년 계층 ③ 신혼부부·한부모가족 계층 ④ 고령자 ⑤ 주거급여수급자

■ 우선공급대상자
입주자모집공고일(2023.11.10) 현재 일반공급대상자의 요건을 모두 갖추고 아래 요건을 갖춘 자
| 대학생 | 화성시에 소재하는 대학에 재학 중이거나 다음 학기에 입학 또는 복학예정인 사람 |
| 취업준비생 | 화성시에 거주하는 사람 |
※ 우선공급에서 탈락한 자는 별도의 신청절차 없이 일반 공급신청자로 전환됨
(단, 우선공급자격 미충족 시 부적격 처리되어 일반공급으로 전환되지 않고 탈락처리되므로, 반드시 우선공급자격요건 및 자격서류의 발급가능 여부를 충분히 확인 후 청약신청하시기 바랍니다.)
신청서류
■ 현장 청약접수 시 본인 또는 대리인 구비서류 (PC/모바일 신청자는 해당사항 없음)
(모든 제출서류는 공고일(2023.11.10) 이후 발급한 서류에 한함)
※ 65세 이상 등 현장에서 청약접수를 희망하실 경우 기본서류와 더불어 아래 서류를 추가로 준비하여 청약장소로 내방
| 구 분 | 구 비 서 류 |
| 본인이 직접 방문신청할 때 |
① 본인 신분증(주민등록증, 운전면허증, 여권만 인정) ② 본인 도장(서명으로 대체 가능) |
| 배우자가 대리 방문신청할 때 |
① 본인(신청자) 및 배우자의 신분증(주민등록증, 운전면허증, 여권만 인정) ② 본인(신청자) 도장 ③ 본인(신청자)과의 관계 입증서류(주민등록표등본 등) |
| 기타 대리인이 대리 방문신청할 때 (예비배우자 포함) |
① 공통 : 본인(신청자) 및 대리인의 신분증(주민등록증, 운전면허증, 여권만 인정) ② (인감증명방식) 본인(신청자)의 인감증명서(본인발급용), 본인(신청자)의 인감도장, 위임장(인감증명서상의 도장일 것, 공사양식_별지4) ③ (본인서명방식) 본인(신청자)의 본인서명사실확인서, 본인(신청자)이 자필 서명한 위임장(본인서명사실확인서상의 서명일 것, 공사양식_별지4) * 수임인 서명란에 대리인 성명을 반드시 명기 |
■ 공통 제출서류
• 인터넷(PC‧모바일) 신청자 : 서류제출대상자로 확정된 후 서류제출시점에 제출 • 현장 신청자 : 청약신청시점에 제출


■ 공급대상자(계층)별 추가 제출서류 >> 첨부파일 참조
시행자 및 시공업체 현황
| 블록 | 사업주체 | 시공업체 | 감리회사 |
| A-3 | 한국토지주택공사 | 주식회사 금강주택 | ㈜토문엔지니어링건축사사무소(대표업체) |
온라인 청약 신청 방법
- PC : LH 청약플러스(http://apply.lh.or.kr) → 청약 → 임대주택 → 청약신청하기
- 모바일 : "LH 청약플러스" 앱(App)설치 → 청약 → 임대주택 → 청약 신청
문의처
| 임대문의 | 콜센터 | 전국 대표전화 1600-1004(평일 09:00 ~ 18:00) |
| 인터넷 | - 콜센터 : 전국 대표전화 1600-1004 또는 1670-0003 - 인터넷 - 마이홈포털(http:/www.myhome.go.kr) - 행복주택 공식 블로그 (http:/blog.naver.com/happyhouse2u) - LH 홈페이지 (http:/www.lh.or.kr) |
모집공고문, 팸플릿 첨부
댓글